這是一個跌宕起伏的周末!
-
日期:2018-07-14
-
來源:本站
-
點擊:1419
這是一個跌宕起伏的周末!
方案怎么又改了!
回想起來都是淚,原本平靜的一個周末,變得如此跌宕起伏!
周六一早,父皇和母后說現在敲打結束了,垃圾也清理干凈了,想去裝修現場看看敲完的樣子,于是父皇、母后還有皇兄以及我,四人一起去了現場,一個平靜的周末就由此被打破~
來到現場,看到計總已經讓工人運來了一部分砌墻的材料了。
母后先去了主臥(皇兄房間)看了一下。
發現新增的衛生間會占掉非常多的主臥空間,覺得主臥有點太小了,就想說能不能把衛生間縮小一點,讓主臥不要這么小。
父皇跟母后解釋說:方案之前和計總探討過了,現在這樣是最優的方案了,因為主臥邊上是主衛,主衛又需要裝浴缸,浴缸需要1.6米的寬度,只能按照這樣改。
母后就說那公衛縮小一點沒關系,主臥堅決不能小!
父皇又跟母后解釋:衛生間這個窗戶就是公衛砌墻的位置,公衛再怎么縮小也不能比這個窗戶小,窗戶的位置限制住了公衛的大小,你總不能把窗戶切兩半吧?
母后就說那主臥太小啦,哪有這么小的主臥。
父皇說房子就這么大,一邊空間大了另一邊肯定小了,有什么辦法?
接下來的時間兩人就嘰里咕嚕說了好久這個問題。
皇兄也幫忙一起商量如何布局更合適。
到了廚房,我就看到原來櫥柜拆掉之后墻上的瓷磚質量這么差,之前被櫥柜擋住了沒發現,
現在看到好多磚是缺角的或者有網紋的,我就建議說把廚房的瓷磚全部換掉,這樣整體比較美觀。
但是這個建議馬上就被否決了,節約開支是目標。
可是我這么建議也是為了皇兄將來住在這里能更舒服嘛,現在櫥柜換新的了,磚這么破破的,到時候再來換瓷磚,那才更花錢。我就想說既然都裝修了,就一次裝好來,不要到時候裝好了又后悔這么沒改那邊沒改。
為了施工能順利進行,我就暫時不發表建議了,畢竟一人一個想法,想要統一很難。
裝修這種事情還是一個人來負責最好了,就不會有這么多的不同意見和不同想法。
這時候發生了更大的分歧:
皇兄說保姆間留著干嘛,干脆拆掉改成廚房一起算了,現在的保姆間其實就是一個通道,也不算一個房間,他也沒有計劃找保姆,還不如給廚房讓廚房變大一點,冰箱也有地方放了。
既然是皇兄提出的,將來這個也是他的婚房,然后父皇說干脆把廚房邊上一圈的酒柜也給敲掉算了,他覺得那個酒柜也不實用。
這個提議立馬遭到了母后的反對,這樣改造會花費更多錢的,而且這個酒柜好好的干嘛要敲掉,太可惜了!
一家人在現場個人有個人的想法,于是開始大范圍的討論,
父皇一直覺得進門左手邊這面柜子不好看,而且也有點舊了,他很想敲掉重新做新的,但是皇兄又反對這個提議,覺得沒有必要,柜子用著還可以,門板舊了就把門板換掉嘛。
父皇說門板換掉,邊上這面假的柜子門板也要一起換掉,這樣換還不如全部換掉做新的。
現場討論得越來越沒有頭緒了,越聊越亂,于是父皇說叫計總來現場一起參謀一下。
于是呢,計總大中午又被我們叫來現場了,計總從開工到現在每天都被我們叫來現場討論怎么裝修,幸苦計總了。
這次是最辛苦計總的!因為敲打已經結束了,垃圾也都清干凈了,砌墻的水泥沙子磚這些材料也都運上來了。現在忽然說要擴大改造范圍,一下子把計總的安排全打亂了,原本周一就要開始砌墻的,泥水師傅都安排好了,結果現在這么一改,計總全盤都得調整,真是不好意思啊計總!
全家人在現場討論到三點多,暫時覺得廚房保姆間全敲改造,包括進門左手邊這里也要改!計總說最好晚上全家人開個會確認一下,不然到時候再改方案就來不及了。我們贊同,跟計總說晚上給他電話匯報最后方案。
下午我還有事就先走啦,晚上回家發現父皇母后都睡了,男友說我的父皇已經跟計總說確定全部要改了。
原本以為他們已經開會討論好方案了,沒想到周日一早,我們全家人又被父皇叫來了裝修現場,再次確認一下裝修方案。
剛到現場,父皇說左邊這面墻的柜子要全部拆掉,皇兄說好好的干嘛要敲掉,昨天也沒說這里要敲。
于是全家人在現場又展開了大范圍討論,我就不參與討論了,以免產生更多分歧。
看狀況好像是討論不出結果,父皇和母后說讓計總來現場,具體怎么改叫皇兄來確定,畢竟以后這里是皇兄住。
母后還把我男朋友也叫來現場做參謀。
這次真的又要對計總說sorry了,計總已經跟客戶約好了做水電定位,現在又要他來一趟現場,真的很不好意思,我們這樣改來改去不知道計總會不會很無語呀。
計總說要他來他就一定會來,既然裝修了,就一定要把裝修做好,多跑幾趟就多跑幾趟吧,能裝修出滿意的效果就好。
真心感謝計總!天天都來我們家報道~
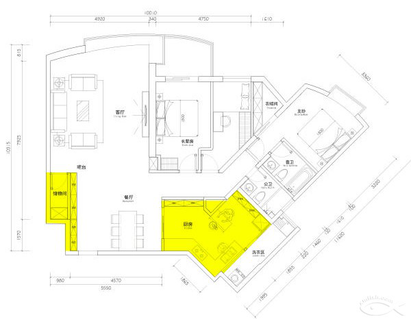
經過計總詳細的分析和建議,皇兄和計總一步一步把改造方案給定下來了,總算是有了一個結果,最后的確定方案就是周六下午父皇跟計總說的那樣:
1.把保姆間也敲掉,和廚房作為一個大空間,墻磚地磚全部換掉。
2.進門左手邊這面柜子全部拆掉,重做新的,之前這個柜子深度很深,不好使用,剛好背面還能增加一個mini儲藏間,用來放棉被這些,mini儲藏間其實就是一個加大號的儲物柜啦。
計總很快也把新的設計方案發給我們了:
(修改區域為黃顏色區域)
下圖是原先方案:
今天下午又讓計總白跑一趟,辛苦計總了!
再次感謝計總為我們家裝修反復奔波!
希望接下來麻煩會少一點,不然我都不好意思給計總打電話了。
一定要順利一定要順利!

