裝修必修課—不會看圖紙你就弱了
-
日期:2018-09-21
-
來源:本站
-
點擊:1433
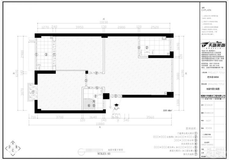
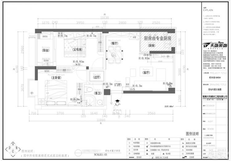
裝修不是一件容易的事,考驗你各方面的能力,比如審美、預算、砍價,還有很重要的一點,就是看圖紙,這可不僅僅局限于我們最初能接觸到的平面布置圖。
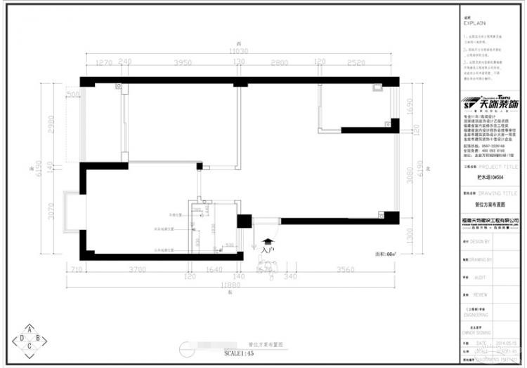
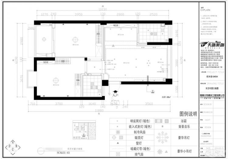
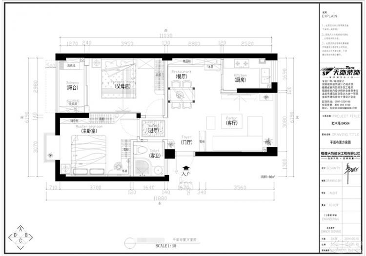
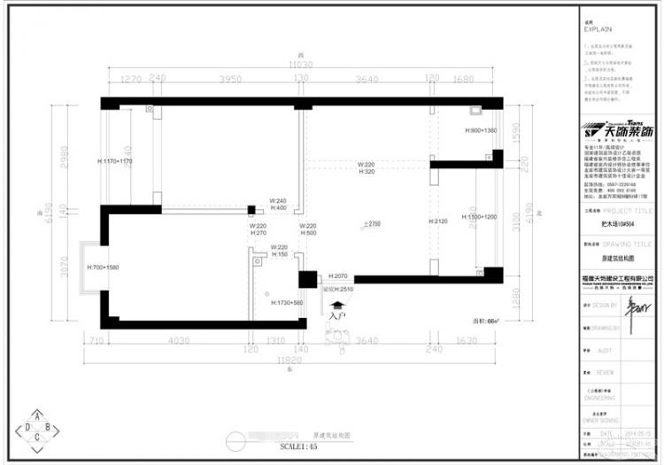
這不,王帥設計師丟給了我一堆圖紙,來列舉一下:設計說明、原始結構圖、平面布置方案圖、原結構拆墻尺寸圖、新砌墻體尺寸圖、地面布置方案圖、吊頂布置圖、水路布置圖、管位方案布置圖、開關布置方案圖、強電插座圖、弱電插座圖。
這不,王帥設計師丟給了我一堆圖紙,來列舉一下:設計說明、原始結構圖、平面布置方案圖、原結構拆墻尺寸圖、新砌墻體尺寸圖、地面布置方案圖、吊頂布置圖、水路布置圖、管位方案布置圖、開關布置方案圖、強電插座圖、弱電插座圖。
這還不是全部~有些圖紙其實是后期設計師才會給到用戶的,但是我主動和他要了過來~~順帶發這篇帖子科普~~如果說3D效果圖能很直觀的讓你看到效果,那么這么多圖紙的背后,才是房屋完善的基礎,設計師、監理、施工隊就是靠這些圖紙在工作著。想要了解你的房子即將如何裝修,最好你也學會看裝修圖紙。涉及到方方面面,一般的圖紙下面也都有注釋,能幫助你更容易了解圖紙上所表達的含義。送上圖紙……
上一條:預留升級空間,用長遠的眼光看裝修
下一條:裝修,我該不該網上挑建材呢? ????


