符合實際定方案,向著裝修邁進
-
日期:2018-09-23
-
來源:本站
-
點擊:1401
任何一個裝修的方案都不可能是一蹴而就,而且在設計上總有優勢、劣勢,但是不論如何,符合自己的需求才是王道。
正是出于符合自己的需求為主線,我們與王帥設計師(已經升級成王帥了,每次見他,都忍不住帥哥帥哥喊,喔哈哈~請原諒我,我不想當花癡,哈哈)再三修改,最終敲定了方案~特別是我這種有選擇障礙的人,再三變動的方案,但是王帥沒有嫌煩,反而很耐心的聽著。
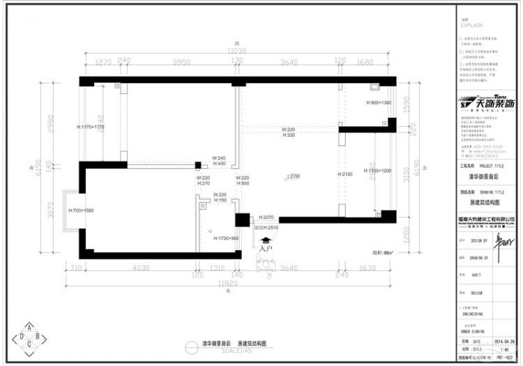
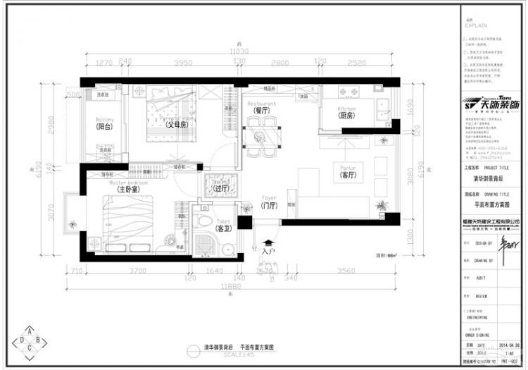
主要是:1、把客廳的北面陽臺敲掉,窗臺敲低至40cm,擴大客廳面積的同時有足夠的采光;2、廚房向外延,擴大利用空間;3、敲掉主臥與次臥之間的墻體,用于做一面衣櫥;4、敲掉次臥與衛生間之間的墻體,將墻體向次臥延升約40cm,將浴室做成干濕分離;
正是出于符合自己的需求為主線,我們與王帥設計師(已經升級成王帥了,每次見他,都忍不住帥哥帥哥喊,喔哈哈~請原諒我,我不想當花癡,哈哈)再三修改,最終敲定了方案~特別是我這種有選擇障礙的人,再三變動的方案,但是王帥沒有嫌煩,反而很耐心的聽著。
主要是:1、把客廳的北面陽臺敲掉,窗臺敲低至40cm,擴大客廳面積的同時有足夠的采光;2、廚房向外延,擴大利用空間;3、敲掉主臥與次臥之間的墻體,用于做一面衣櫥;4、敲掉次臥與衛生間之間的墻體,將墻體向次臥延升約40cm,將浴室做成干濕分離;
盡量提高可利用率,和生活的便利性。隨著裝修方案的正式確定,入住的時間也提早的定下,在12月份的某一個特別的日子,當作送給自己26歲的生日禮物,從今天起,為此努力~

