99
65
33
| 姓名: | |
| 電話: | |
| 戶型: | |
| 面積: | |
華潤橡樹灣

參加團裝活動享受哪些優惠政策
圖片或者文字排版出來即可
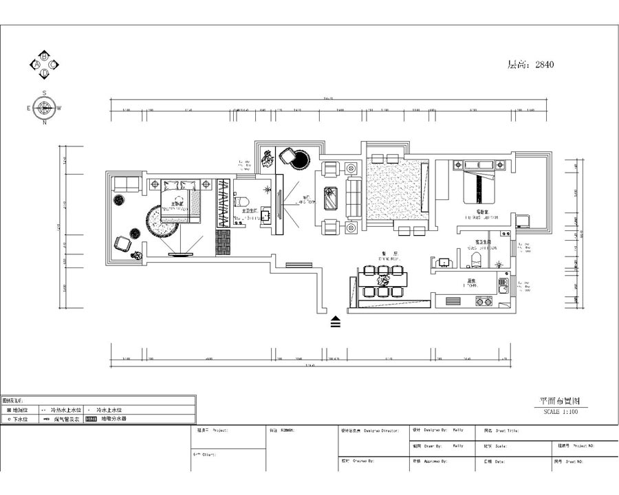
裝修設計的效果圖最好再加上戶型圖







| 團裝小區 |
| 姓名: | |
| 電話: | |
| 戶型: | |
| 面積: | |

參加團裝活動享受哪些優惠政策
圖片或者文字排版出來即可
裝修設計的效果圖最好再加上戶型圖






