52
33
20
招商海德公園


參加團裝活動享受哪些優(yōu)惠政策
圖片或者文字排版出來即可
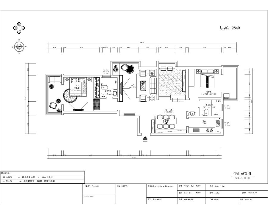
裝修設計的效果圖最好再加上戶型圖








| 團裝小區(qū) |


參加團裝活動享受哪些優(yōu)惠政策
圖片或者文字排版出來即可
裝修設計的效果圖最好再加上戶型圖







