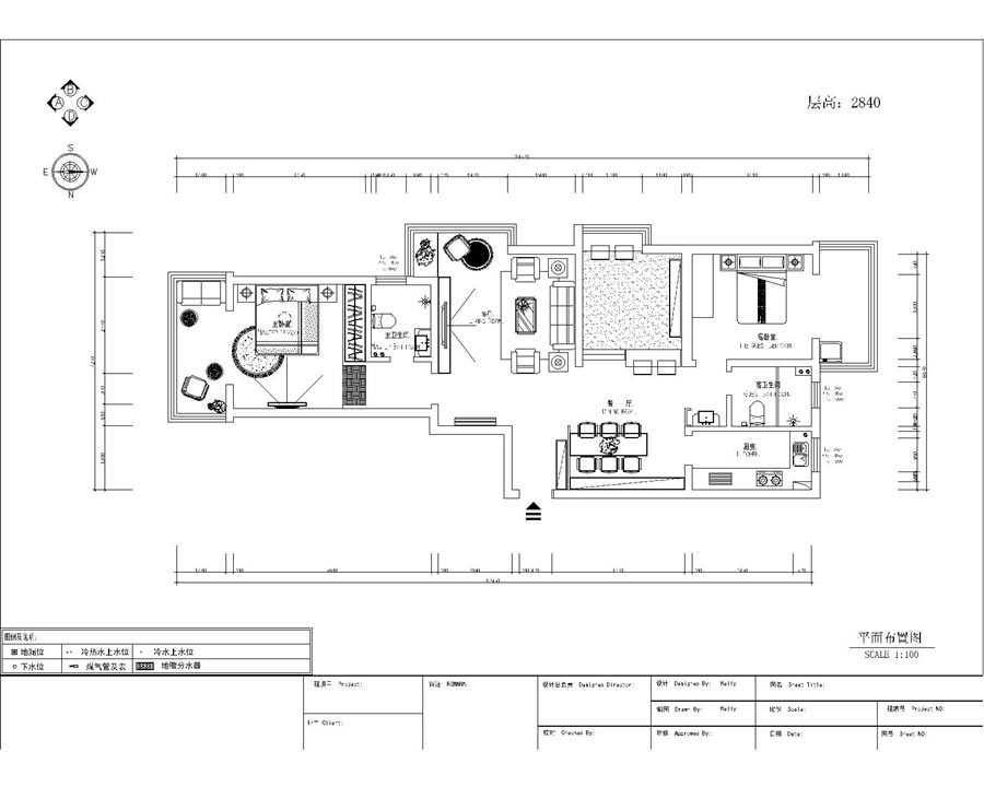
戶型:三居 3#B戶型
-
日期:2016-04-28
-
點擊:2750
戶型分析:

設計效果圖:




日期:2016-04-28
點擊:2750
戶型分析:

設計效果圖:



