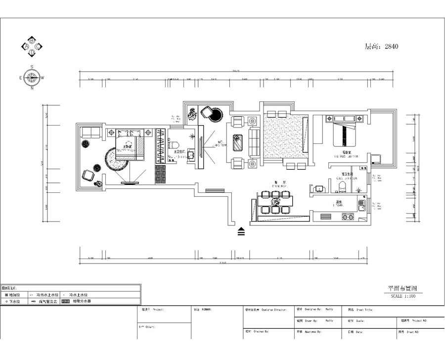
戶型:三居 3#C戶型
-
日期:2016-04-28
-
點擊:2780
戶型分析:
設計效果圖:



日期:2016-04-28
點擊:2780
戶型分析:
設計效果圖:


