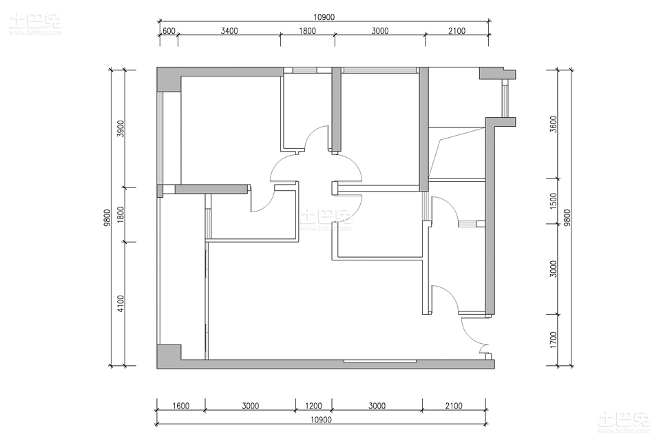
戶型:三居 3#D戶型
-
日期:2016-04-28
-
點擊:2960
戶型:三居 3#D戶型
設計效果圖:



日期:2016-04-28
點擊:2960
戶型:三居 3#D戶型
設計效果圖:


