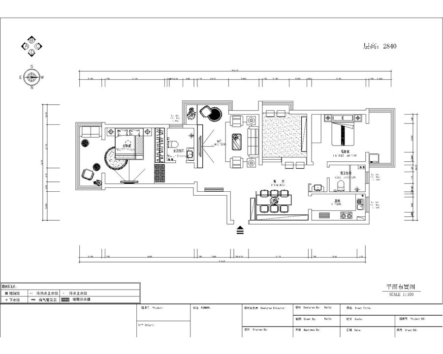
戶型:三居 3#E戶型
-
日期:2016-04-28
-
點擊:2990
戶型分析:
設計效果圖:




日期:2016-04-28
點擊:2990
戶型分析:
設計效果圖:



